堀川御池 町家貸店舗

京都らしさを残しながら、現代のビジネスにフィットする空間。観光客も地元客も惹きつける、風情ある町家店舗。地下鉄アクセス抜群、観光地近接の好立地。













◆概要
所在 京都市中京区三坊堀川町
交通 地下鉄東西線 「二条城前」徒歩3分
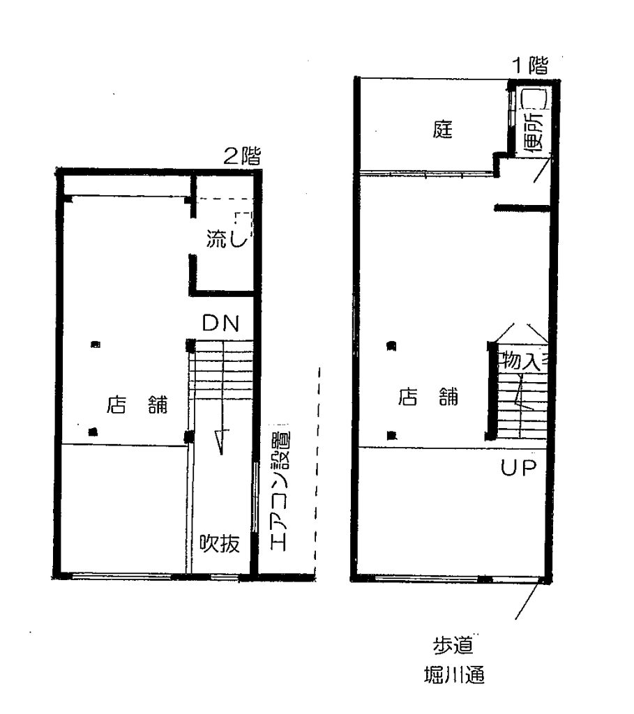
規模 木造2階建 面積 1階37.53㎡ 2階29.62㎡
※築年月は不詳です
◆条件
賃料 330,000円(消費税込)
敷金 100万円 礼金 33万円(消費税込)
2年契 更新料なし
※業種は相談

不動産を通じて京都のまちづくりに貢献する

堀川御池 町家貸店舗

京都らしさを残しながら、現代のビジネスにフィットする空間。観光客も地元客も惹きつける、風情ある町家店舗。地下鉄アクセス抜群、観光地近接の好立地。













◆概要
所在 京都市中京区三坊堀川町
交通 地下鉄東西線 「二条城前」徒歩3分
規模 木造2階建 面積 1階37.53㎡ 2階29.62㎡
※築年月は不詳です
◆条件
賃料 330,000円(消費税込)
敷金 100万円 礼金 33万円(消費税込)
2年契 更新料なし
※業種は相談